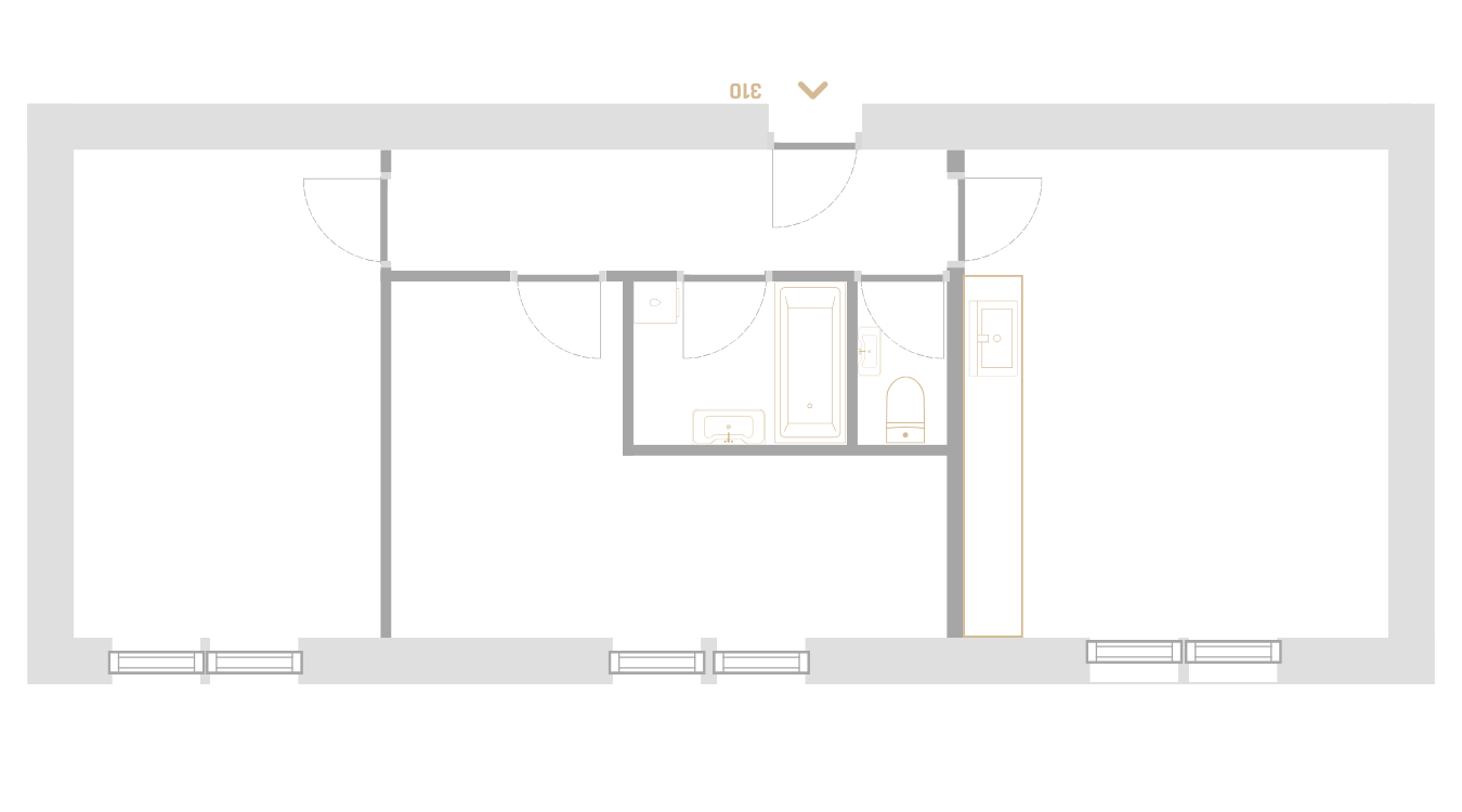
Byt 310
Zpět na nabídku bytů
Výměra bytu je uváděna v m2 čisté užitné plochy.
Schéma půdorysu bytu představuje předpokládané dispoziční řešení. Kuchyňské linky, nábytek a interiérové doplňky nejsou předmětem dodávky. Výměry jednotlivých místností jsou pouze orientační. Investor se tímto nevzdává práva na případné úpravy či doplnění marketingového materiálu.
Užitná plocha je uvedena jako čistá vnitřní plocha v m². Půdorys znázorňuje předpokládané dispoziční řešení a má pouze informativní charakter. Kuchyňská linka, nábytek a doplňky nejsou součástí dodávky. Výměry jednotlivých místností jsou orientační a mohou se změnit. Vizualizace a další materiály mají nezávazný charakter a nemusí odpovídat finálnímu provedení. Investor si vyhrazuje právo kdykoli materiály upravit nebo doplnit.











